Unit 04

Unit Price ~ 0 S.R

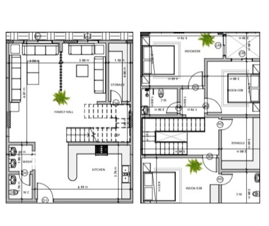
Area 203m
Bedrooms 3
Bathrooms 2
Luxury duplex apartment ideally designed for families : Ground floor : Kitchen - living room - men's reception room - storage room - and guest bathroom. Upper floor : Master bedroom with a spacious walk-in closet - two additional bedrooms (one with an ensuite bathroom) - lounge - and a bathroom serving the third bedroom.
Register Interest
Unit Image
Unit Image